Горелка запальная газовая для розжига факельных систем ЭКВ-ТВ-ФН1, ЭКВ-ТВ-ФН1И • цена, стоимость в минске, бресте, гомеле, витебске, могилеве, гродно от Приборинвест 
1 2 3 4 5

ЭКВ-ТВ-ФН1, ЭКВ-ТВ-ФН1И Горелка запальная газовая

Наличие:
под заказ
 

Фотогалерея изображений к товару ЭКВ-ТВ-ФН1, ЭКВ-ТВ-ФН1И Горелка запальная газовая:

 

Подробное описание технических характеристик ЭКВ-ТВ-ФН1, ЭКВ-ТВ-ФН1И Горелка запальная газовая, его возможные модификации (исполнения), а так же как правильно оформить заказ:

ЭКВ-ТВ-ФН1, ЭКВ-ТВ-ФН1И Горелка запальная газовая факельная цена в Минске, Гомеле, Гродно, Бресте, Витебске, Могилеве
Назначение:

Запальная горелка ЭКВ-ТВ-ФН1, ЭКВ-ТВ-ФН1И предназначена для розжига факельных и горелочных устройств промышленного энергетического оборудования. Допускается использование запальной горелки в постоянном режиме, т.е. в режиме дежурной горелки. Запальная горелка предназначена для работы в топочных агрегатах с разрежением или с уравновешенной тягой и не требует специального подвода воздуха

Технические характеристики:

Вид топлива: природный газ по ГОСТ 5542, пропан-бутан.

Параметр

Значение

Давление подачи газа

0,2...1,0 ати

Напряжение питания свечи накаливания

24 В

Мощность, потребляемая свечой накаливания, не более

300 Вт

Расход природного газа

4,8...10,6 м3

Контроль пламени

термопара (не входит в комплект поставки) - для ЭКВ-ТВ-ФН1,
ионизационный зонд (входит в комплект поставки) - для ЭКВ-ТВ-ФН1И

Температура окружающей среды

от -40°С до +60°С

Материал горелки

 Сталь 12Х18Н9Т

 

Особенности:

Допускается использование запальной горелки в постоянном режиме горения, т.е. в режиме дежурной горелки.
Длина ствола запальной горелки от установочного фланца до среза сопла до 15000 мм.

Горелка поставляется без термопреобразователя. Это вязано с тем, что горелки применяются в различных системах автоматики, в которых могут быть использованы различные типы термопреобразователей.
Горелка может быть доработана под технические условия Заказчика.

Габаритные размеры:

ekv-tv-fn1_ekv-tv-fn1i-gorelki-zapalnie-gazovie-eskiz

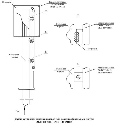
Схема установки:
ekv-tv-fn1_ekv-tv-fn1i-gorelki-zapalnie-gazovie-shema-ustanovki

Заказ:

При заказе и составлении заявки в Приборинвест укажите наименование запальной горелки и ее длину, например:
 

Горелка запальная ЭКВ-ТВ-ФН1/3000.

 


Код товара: jekv-tv-fn1-jekv-tv-fn1i--общемаш Вес: 0.00


ПРИБОРЫ ИЗМЕРЕНИЯ ФИЗИКО-ХИМИЧЕСКОГО СОСТАВА И СВОЙСТВ ВЕЩЕСТВ. ЛАБОРАТОРНОЕ ОБОРУДОВАНИЕ
||Газоанализаторы, газосигнализаторы, индикаторы утечек газа переносные и портативные || || Газоанализаторы стационарные, сигнализаторы горючих газов стационарные, газоаналитические системы, газосигнализаторы стационарные || || Датчики-газоанализаторы, Датчики-сигнализаторы газов || || Пылемеры, измерители концентрации взвешенных частиц, анализаторы пыли || || Датчики качества воздуха (VOC), Датчики углекислого газа (CO2), Датчики угарного газа (CO) || || Функциональное оборудование для газоанализаторов, газосигнализаторов, аналитических систем || || Аквадистилляторы, Бидистилляторы, Деионизаторы воды || || Анализаторы автоматические || || Анализаторы вольтамперометрические || || Анализаторы жидкости || || Анализаторы инфракрасные || || Анализаторы молока и молочной продукции || || Анализаторы ртути || || Анализаторы углерода, серы || || Аспираторы || || Бани лабораторные || || Блоки очистки газов || || Генераторы газов || || Испарители ротационные || || Кислородомеры, Водородомеры || || Компрессоры сухого воздуха || || Кондуктометры, Концентратомеры || || Мешалки, устройства перемешивающие, шейкеры || || Натриймеры, Нитратомеры, Солемеры || || Оборудование для анализа нефти и нефтепродуктов || || Оборудование для рассева || || Плиты лабораторные нагревательные || || Пробоотборники || || pH-метры, Иономеры || || Спектрометры || || Спектрофотометры || || Сушильные шкафы и муфельные печи || || Термоблоки || || Термостаты воздушные || || Термостаты жидкостные || || Фотоколориметры, Фотометры || || Центрифуги || || Экстракторы || || Одориметры || || Дозиметры стационарные, переносные ||
ПРИБОРЫ ДЛЯ ИЗМЕРЕНИЯ И РЕГУЛИРОВАНИЯ ДАВЛЕНИЯ И ВАКУУМА
||Манометры, дифманометры, термометры, вакуумметры и мановакуумметры самопишущие || || Напоромеры, тягонапоромеры, тягомеры показывающие, сигнализирующие, взрывозащищенные || || Датчики-реле давления, перепада давления, разности давления, напора и тяги || || Измерители давления: Цифровые напоромеры, тягомеры и тягонапоромеры || || Манометры, мановакуумметры, вакуумметры показывающие: технические, котловые, аммиачные, виброустойчивые, коррозионностойкие || || Манометры, мановакуумметры, вакуумметры электроконтактные, сигнализирующие: технические, взрывозащищенные, коррозионностойкие || || Манометры дифференциальные, Дифманометры || || Манометры, мановакуумметры, вакуумметры цифровые || || Манометры, мановакуумметры и вакуумметры образцовые, эталонные и точных измерений || || Преобразователи давления, датчики давления аналоговые, цифровые с выходным сигналом в mA, V, HART || || Преобразователи давления, датчики давления в унифицированный сигнал взаимной индуктивности мГн || || Преобразователи давления, датчики давления в унифицированный пневматический выходной сигнал || || Термоманометры, комбинированные манометры с термометром || || Разделители мембранные, разделители сред || || Отборные устройства давления, отводы сифонные, охладители, сосуды ||
ПРИБОРЫ ДЛЯ ИЗМЕРЕНИЯ И РЕГУЛИРОВАНИЯ ТЕМПЕРАТУРЫ
||Датчики-реле температуры, измерители температуры, термостаты || || Термопреобразователи сопротивления , Термометры сопротивления медные и платиновые || || Преобразователи термоэлектрические, термопары || || Преобразователи температуры, датчики температуры, термопреобразователи с унифицированым выходным сигналом || || Термометры биметаллические показывающие и сигнализирующие || || Термометры манометрические показывающие, сигнализирующие, взрывозащищенные || || Термометры цифровые || || Пирометры, Инфракрасные бесконтактные термометры || || Капиллярные термостаты, Комнатные термостаты, Терморегуляторы для помещений || || Термостаты защиты от замерзания, Датчики защиты от замораживания, Мониторы защиты от замерзания || || Погружные термостаты, Ввинчиваемые терморегуляторы и датчики-реле температуры || || Накладные термостаты, Накладные терморегуляторы || || Канальные термостаты, Канальные терморегуляторы ||
ПРИВОДНАЯ ТЕХНИКА, МЕХАНИЗМЫ И ЭЛЕКТРОПРИВОДНОЕ ОБОРУДОВАНИЕ
ВТОРИЧНЫЕ ПРИБОРЫ И ФУНКЦИОНАЛЬНАЯ АППАРАТУРА
ПРИБОРЫ ДЛЯ ИЗМЕРЕНИЯ, СИГНАЛИЗИРОВАНИЯ И РЕГУЛИРОВАНИЯ УРОВНЯ
||Контроллеры уровня || || Датчики-реле, сигнализаторы, регуляторы уровня емкостные || || Датчики-реле, сигнализаторы, регуляторы уровня кондуктометрические || || Датчики-реле, сигнализаторы, регуляторы уровня поплавковые, магнитные || || Датчики-реле, сигнализаторы, регуляторы уровня ротационные || || Датчики-реле, сигнализаторы, регуляторы уровня вибрационные || || Датчики-реле, сигнализаторы, регуляторы уровня микроволновые || || Датчики-реле, сигнализаторы, регуляторы уровня ультразвуковые, акустические || || Сигнализаторы уровня и потока термодифференциальные || || Поплавковые выключатели, поплавковые датчики уровня, сигнализаторы уровня подвесные || || Уровнемеры, преобразователи уровня буйковые || || Уровнемеры, преобразователи уровня поплавковые магнитные, магнитострикционные || || Уровнемеры, преобразователи уровня гидростатические || || Уровнемеры, преобразователи уровня емкостные || || Уровнемеры, преобразователи уровня радарные || || Уровнемеры, преобразователи уровня микроволновые || || Уровнемеры, преобразователи уровня ультразвуковые || || Байпасные указатели-индикаторы уровня ||
ПРИБОРЫ ДЛЯ ИЗМЕРЕНИЯ И РЕГУЛИРОВАНИЯ РАСХОДА ГАЗА, ВОДЫ, ПАРА
ПРИБОРЫ ДЛЯ ИЗМЕРЕНИЯ И РЕГУЛИРОВАНИЯ ВЛАЖНОСТИ
КОТЕЛЬНАЯ АВТОМАТИКА И СИСТЕМЫ АВТОМАТИЗАЦИИ КОТЕЛЬНЫХ УСТАНОВОК
ПРИБОРЫ ЭЛЕКТРОАКУСТИЧЕСКИЕ. СРЕДСТВА ЗВУКОВОЙ, СВЕТОВОЙ И СВЕТОЗВУКОВОЙ СИГНАЛИЗАЦИИ И ОПОВЕЩЕНИЯ
ПРИБОРЫ ЭЛЕКТРОИЗМЕРИТЕЛЬНЫЕ
ПРИБОРЫ ГИДРОМЕТЕОРОЛОГИЧЕСКИЕ И ГИДРОЛОГИЧЕСКИЕ
ПРИБОРЫ И ОБОРУДОВАНИЕ НЕРАЗРУШАЮЩЕГО КОНТРОЛЯ И ТЕХНИЧЕСКОЙ ДИАГНОСТИКИ
УСТРОЙСТВА КОНТРОЛЯ ДВИЖЕНИЯ И ОСВЕЩЕННОСТИ
ТРУБОПРОВОДНАЯ ЗАПОРНО-РЕГУЛИРУЮЩАЯ АРМАТУРА
СИСТЕМЫ АВТОМАТИЗАЦИИ
НАСОСЫ, НАСОСНЫЕ АГРЕГАТЫ И СТАНЦИИ
БРЕНДЫ
||B || || D || || F || || L || || S || || T || || W ||
♦ Новые статьи ♦
Таблица взаимозаменяемости многооборотных электроприводов ABS с электроприводами Тулаэлектропривод, AUMA
Параметры эл.привода тульского завода Параметры эл.привода ЗЭиМ IP 54 Параметры эл.привода ЗЭиМ IP 67 Условное обозначение привода Крутящий момент на выходном валу, Нм Частота вращения выходного вала, об/мин Условное обозначение привода Крутящий момент на выходном валу, Нм Частота вращения выходного вала, об/мин Условное обозначение привода Крутящий момент на выходном валу, Нм Частота вращения выходного вала, об/мин Электроприводы типа "А"- общего назначения Н-А 01 84 12 ПЭМ-А21 25-70 12 ПЭМ-А100-12ЦХХ 40-100 7,12,22,48,96 Н-А 02 24 ПЭМ-А1 25-70 24 ПЭМ-А100-22ЦХХ Н-А 04 12 ПЭМ-А23 25-70 12 ПЭМ-А100-12ЦХХ Н-А 05 24 ПЭМ-А3 25-70 24 ПЭМ-А100-22ЦХХ Н-А 07 60,100 12 ПЭМ-А29 70-110 12 ПЭМ-А100-12ЦХХ Н-А 08 24 ПЭМ-А9 70-110 24 ПЭМ-А100-22ЦХХ Н-А 10 12 ПЭМ-А31 70-110 12 ПЭМ-А100-12ЦХХ Н-А 11 24 ПЭМ-А11 70-110 24 ПЭМ-А100-22ЦХХ Электроприводы типа "А"- взрывозащищенного В-А 02 25, 60 24 ПЭМ-А1-IIВТ4 25-70 24 ПЭМ-А100-22ЦХХ-IIВТ4 40-100 7,12,22,48,96 В-А 04 12 ПЭМ-А23-IIВТ4 25-70 12 ПЭМ-А100-12ЦХХ-IIВТ4 В-А 05 24 ПЭМ-А3-IIВТ4 25-70 24 ПЭМ-А100-22ЦХХ-IIВТ4 В-А 07 25, 60 12 ПЭМ-А29-IIВТ4 70-110 12 ПЭМ-А100-12ЦХХ-IIВТ4 ...
Cравнение технических характеристик электроприводов: ABS, AUMA и ZPA Pecky
Однооборотные механизмы и приводы: АБС  Автоматизация AUMA (Германия) ZPA Pecky (Чехия) Наименование Максимальный крутящий момент Нм Код Максимальный крутящий моментНм Код Максимальный крутящий моментНм МЭОФ-40 (М) 84 SG 04.3 63 МОК 52 326 16-80 МЭОФ-40 (У) 84 SGR 05.1 50 МОК 52 326 16-80 МЭОФ-100 (М) 170 SG07.1 300 МОК 52 327 125-250 МЭОФ-100 (У) 170 SGR 07.1 100 МОК 52 327 125-250 МЭОФ-250 (М) 425 SG 10.1 600 МОК 52 328 250-500 МЭОФ-250 (У) 425 SGR 10.1 200 МОК 52 328 250-500 МЭОФ-630 (М) 1070     МОК 52 329 500-1000 МЭОФ-630 (У) 1070     МОК 52 329 500-1000 МЭОФ-1000 (М) 1700 SG12.1 1200     МЭОФ-1000 (У) 1700 SGR 12.1 400     Взрывозащищенные МЭОФ 40 84         МЭОФ-100 (М) 170 SGEXC 05.1 SGEXC 07.1 150 300 МОКР Ex 52321 100-125 МЭОФ-100 (У) 170 SAREXC 07.1/ GS 50.3 350/125 МОКР Ex 52322 100-125 МЭОФ 250 (М) 425 SGEXC 10.1 600 МОКР Ex 52322 250-600 МЭОФ 250 (У) 425 SAREXC 07.5/ GS 63.3 700/250   700/250 МЭОФ 630 (М) 1070 SGEXC 12.1 1200 МО Ex 52120.90Х0 + ZPM 12 1200 МЭОФ 630 (У) 1070 SAREXC 10.1/ GS 80.3 ...
Таблица замены инлайн насосов DAB-GRUNDFOS-WILO с частотным регулированием
DAB GRUNDFOS WILO Код Модель 1 V~ 2 DN 3 L 4 H (m) 5 Q(m3/h) Модель Модель Одиночные инлайн насосы с частотным регулированием с фланцевыми соединениями 105110610 KLPE 40/600 M 1 40 250 8,2 12 TPE 40-60 - 105110630 KLPE 40/1200 M 1 40 250 13,7 12 TPE 40-120 IP-E 40/2-12 (tri) 105110650 KLME 50/600 M 1 50 280 5,4 18 TPE 50-60 - 105110670 KLPE 50/1200 M 1 50 280 12 18 - IP-E 50/2-12 (tri) 105110690 KLME 65/600 M 1 65 340 5,5 18 TPE 65-60 - 105110710 KLPE 65/1200 T 3 65 340 12 36 TPE 65-120 IP-E 65/2-15 (+H) 105110730 KLME 80/600 M 1 80 360 5,7 48 - - 105110750 KLPE 80/1200 T 3 80 360 11,8 48 TPE 80-120 IP-E 80/2-15 (+H) Двойные инлайн насосы с частотным регулированием с фланцевыми соединениями 105210610 DKLPE 40/600 M 1 40 250 8,2 12 TPED 40-60 - 105210630 DKLPE 40/1200 M 1 40 250 13,7 12 TPED 40-120 IP-E 40/2-12 (tri) 105210650 DKLME 50/600 M 1 50 280 5,4 18 TPED 50-60 - 105210670 DKLME 50/1200 M 1 50 280 12 18 - IP-E 50/2-12 (tri) 105210690 DKLME 65/600 M 1 65 340 5,5 18 TPED 65-60 - 105210710 DKLPE 65/1200 T 3 65 340 12 36 TPED 65-120 DP-E 65/2-15 ...
Таблица замены n-полюсных насосов инлайн DAB-GRUNDFOS-WILO
DAB GRUNDFOS WILO Код Модель 1 V~ 2 DN 3 L 4 H (m) 5 Q(m3/h) Модель Модель Одиночные четырех-полюсные насосы инлайн 105121290 CM 40-440 T 3 40 390 4,4 6 TP 40-30/4 - 105121310 CM 40-540 T 3 40 390 5,4 6 TP 40-60/4 IPn 40/125-0,55/4 105121330 CM 40-670 T 3 40 390 6,7 6 TP 40-90/4 - 105121350 CM 40-870 T 3 40 390 8,7 6 TP 40-100/4 IPn 40/160-0,55/4 105122100 CM 40-1300 T 3 40 380 18 TP 40-130/4 IPn 40/200-0,75/4 105122110 CM 40-1450 T 3 40 380 18 TP 40-160/4 IPn 40/224-1,1/4 105121470 CM 50-510 T 3 50 425 6 TP 50-30/4 - 105121490 CM 50-630 T 3 50 425 6 TP 50-60/4 - 105121510 CM 50-780 T 3 50 425 6 TP 50-90/4 IPn 50/160-0,55/4 105121530 CM 50-1000 T 3 50 425 12 TP 50-110/4 IPn 50/180-0,75/4 105122120 CM 50-1270 T 3 50 400 18 TP 50-130/4 IPn 50/200-1,1/4 105122130 CM 50-1420 T 3 50 400 24 TP 50-160/4 IPn 50/224-1,5/4 1D4111GX3 CM 65 - 420/A/BAQE/0,25 3 65 360 4,2 24 - - 1D4111G13 CM 65 - 540/A/BAQE/0,37 3 65 360 5,4 24 - - 1D4111G23 CM 65 - 660/A/BAQE/0,55 3 65 360 6,6 24 - - 1D4211G23 CM 65 - 760/A/BAQE/0,55 3 65 360 ...
Таблица замены инлайн насосов ДАБ-ГРЮНДФОС-ВИЛО
DAB GRUNDFOS WILO Код Модель 1 V~ 2 DN 3 L 4 H (m) 5 Q(m3/h) Модель Модель Одиночные инлайн насосы с резьбовыми патрубками 105100000 ALM 200 M 1 1 1/2" 180 1,9 2,4 UP 20-30N - 105100014 ALM 200 T 3 1 1/2" 180 1,9 2,4 - - 105100084 ALP 800 M 1 1 1/2" 180 7,7 6 TP 32-90 - 105100094 ALP 800 T 3 1 1/2" 180 7,7 6 TP 32-90 - 105100024 ALM 500 M 1 2" 250 5,5 7,2 TP 25-50 - 105100034 ALM 500 T 3 2" 250 5,5 7,2 TP 25-50 - 105100124 ALP 2000 M 1 2" 250 21,1 8,4 UPS 40-180F - 105100134 ALP 2000 T 3 2" 250 21,1 8,4 UPS 40-180F - Одиночные инлайн насосы с фланцевыми соединениями 105110404 KLM 40-300 M 1 40 250 3,4 7,2 - - 105110014 KLM 40-300 T 3 40 250 3,4 7,2 TP 40-30/4 IPL 40/130-0,25/4 105110414 KLP 40-600 M 1 40 250 8,2 12 - - 105110214 KLP 40-600 T 3 40 250 8,2 12 TP 40-60/2 - 105110424 KLP 40-900 M 1 40 250 10,2 12 - - 105110224 KLP 40-900 T 3 40 250 10,2 12 TP 40-90/2 - 105110434 KLP 40-1200 M 1 40 250 13,7 14,4 - - 105110234 KLP 40-1200 T 3 40 250 13,7 14,4 TP 40-120/2 IPL 40/115-0,55/2 105110444 KLM 50-300 M 1 50 280 ...
Таблица замены циркуляционных насосов с частотным регулированием DAB-GRUNDFOS-WILO
DAB GRUNDFOS WILO Код Модель 1 V~ 2 DN 3 L 4 H (m) 5 Q(m3/h) Модель Модель Одиночные циркуляционные насосы с частотным регулированием с резьбовыми патрубками 505200182 VEA 35/130 1 1 1/2" 130 4,3 3 ALPHA+ 25-40 130 Stratos ECO 25/1-5-130 505230182 VEA 35/180 1 1 1/2" 180 4,3 3 ALPHA+ 25-40 180 Stratos ECO 25/1-3 505240182 VEA 35/180 X 1 2" 180 4,3 3 ALPHA+ 32-40 180 Stratos ECO 30/1-3 505202182 VEA 55/130 1 1 1/2" 130 5,4 3 ALPHA+ 25-60 130 Stratos ECO 25/1-5-130 505232182 VEA 55/180 1 1 1/2" 180 5,4 3 ALPHA+ 25-60 180 Stratos ECO 25/1-5 505242182 VEA 55/180 X 1 2" 180 5,4 3 ALPHA+ 32-60 180 Stratos ECO 30/1-5 505204182 VEA 65/130 1 1 1/2" 130 6,3 3 ALPHA+ 25-60 130 Stratos ECO 25/1-5-130 505234182 VEA 65/180 1 1 1/2" 180 6,3 3 ALPHA+ 25-60 180 Stratos ECO 25/1-5 505244182 VEA 65/180 X 1 2" 180 6,3 3 ALPHA+ 32-60 180 Stratos ECO 30/1-5 Одиночные циркуляционные насосы с частотным регулированием с фланцевыми соединениями 505980000 VEA 40/190 XM(filettato) 1 2" 190 4 12 magna 32-100 Stratos 30/1-8 505980300 VEA 80/180 XM (filettato) 1 2" 180 8,2 5,4 magna 32-100 Stratos 30/1-8 ...
Таблица замены циркуляционных насосов DAB-GRUNDFOS-WILO
DAB GRUNDFOS WILO Код Модель 1 V~ 2 DN 3 L 4 H (m) 5 Q(m3/h) Модель Модель Одиночные циркуляционные насосы с резьбовыми патрубками 505100962 VA 25/130 1 1 1/2" 130 2,71 3 UPS 25-40 130 Star-RS 25/4-130 Stratos ECO 25/1-5-130 505130962 VA 25/180 1 1 1/2" 180 2,71 3 UPS 25-30 180 Star-RS 25/4 Stratos ECO 25/1-3 505140962 VA 25/180X 1 2" 180 2,71 3 UPS 32-30 180 Star-RS 30/4 Stratos ECO 30/1-3 505100182 VA 35/130 1 1 1/2" 130 4,3 3 UPS 25-40 130 Star-RS 25/4-130 Stratos ECO 25/1-5-130 505110182 VA 35/130 1/2" 1 1" 130 4,3 3 - - 505130182 VA 35/180 1 1 1/2" 180 4,3 3 UPS 25-40 180 Star-RS 25/4 Stratos ECO 25/1-5 505140182 VA 35/180X 1 2" 180 4,3 3 UPS 32-40 180 Star-RS 30/4 Stratos ECO 30/1-3 505102182 VA 55/130 1 1 1/2" 130 5,4 4,2 UPS 25-50 130 Star-RS 25/6-130 Stratos ECO 25/1-5-130 505112182 VA 55/130 1/2" 1 1" 130 5,4 4,2 - - 505132182 VA 55/180 1 1 1/2" 180 5,4 4,2 UPS 25-50 180 Star-RS 25/6 Stratos ECO 25/1-5 505142182 VA 55/180X 1 2" 180 5,4 4,2 UPS 32-50 180 Star-RS 30/6 Stratos ECO 30/1-6 505104182 VA 65/130 1 1 1/2" 130 6,3 3 UPS 25-60 ...
Сравнительные характеристики (аналоги) приборов для замены их продуктами НПП Прома
Наименование прибора от НПП Прома Аналог Производитель Отличительные особенности приборов ПРОМА Датчики давления Прома-ИДМ Прома-ИДМ (В) многофункциональные измерители давления АДН, АДР КБ «Агава» Екатеринбург Универсальное питание 24 или 220в Наличие встроенных 2-х или 4-х электро-магнт. реле Точность 0.5%, Любые пределы измерений, Газ, воздух, вода, пар. Настройка и корректировка всех параметров с ПК, интерфейс RS485,  Н или Щ ПКЦ-1105 ПКД-1105 НПП «Автоматика» Владимир ДДМ-03 ДА датчик абсолютного давления МИДА-ДА-13П Мидаус, Ульяновск Значения выходного сигнала пост. тока, мА        4 – 20 Напряжение питания датчика,  В                           24±6 Нагрузочное сопротивление датчика:           от 1 до 500 Предел погрешности датчика, , не более                ±0,5 ДДМ-03ДИ-Т (ДДМ-03ДИ)датчик избыточного давления ПД100-ДИ ...
Таблица подбора закладных конструкций и отборных устройств по ЗК14
В данном материале расшифровано, что такое ЗК14-2-1-02, ЗК14-2-2-02, ЗК14-2-3-02, ЗК14-2-4-02 и т.д , а также, что из себя представляют закладные конструкции изготавливаемые по альбому ЗК14, где уставнавливаются, и какими типами запорной арматуры комплектуются. Параметры измеряемой среды Место установки Тип отборного устройства Тип запорного клапана (обозначение чертежа) Обозначение установочного чертежа Наименование среды Условное давление, Ру, мПа Температура, гр. С Вода, нефтепродукты с вязкостью более 0,0015м2/с 1,6 70 Горизонтальный или вертикальный трубопровод, стенка аппарата 1,6-70-ст20-МП(ВИЛН 491712 002-01) 11б38бк1, 11б18бк с ручкой, 11б18бк без ручки, 11б18бк с площадкой под контрольный манометр ЗК14-2-1-02 1,6-70-ст20-МУ(ВИЛН 491712 002-01) ЗК14-2-2-02 225 1,6-225-ст20-МП (ВИЛН 491712 002-01) ЗК14-2-3-02 1,6-225-ст20-МУ (ВИЛН 491712 002-01) ЗК14-2-4-02 Неагрессивные жидкости и газы. Отборные устройства с любым типом клапана взаимозаменяемы 16 70 16-70-ст20- МП (Р 1326-00-00)16-70-ст20-МП (ОБ22.044.015.00.05) 16-70-ст20-МП ( КЗ 21215-006-01)16-70-ст20-МП (ПЗ 22038-006) ВВД 14с64нж (Р1326-00-00)15с54бк1 (ОБ22.044.015.00.05)15с67бк1 (КЗ 21215-006-01)ПЗ 22038-006 ЗК14-2-1-02 16-70-ст20- ...